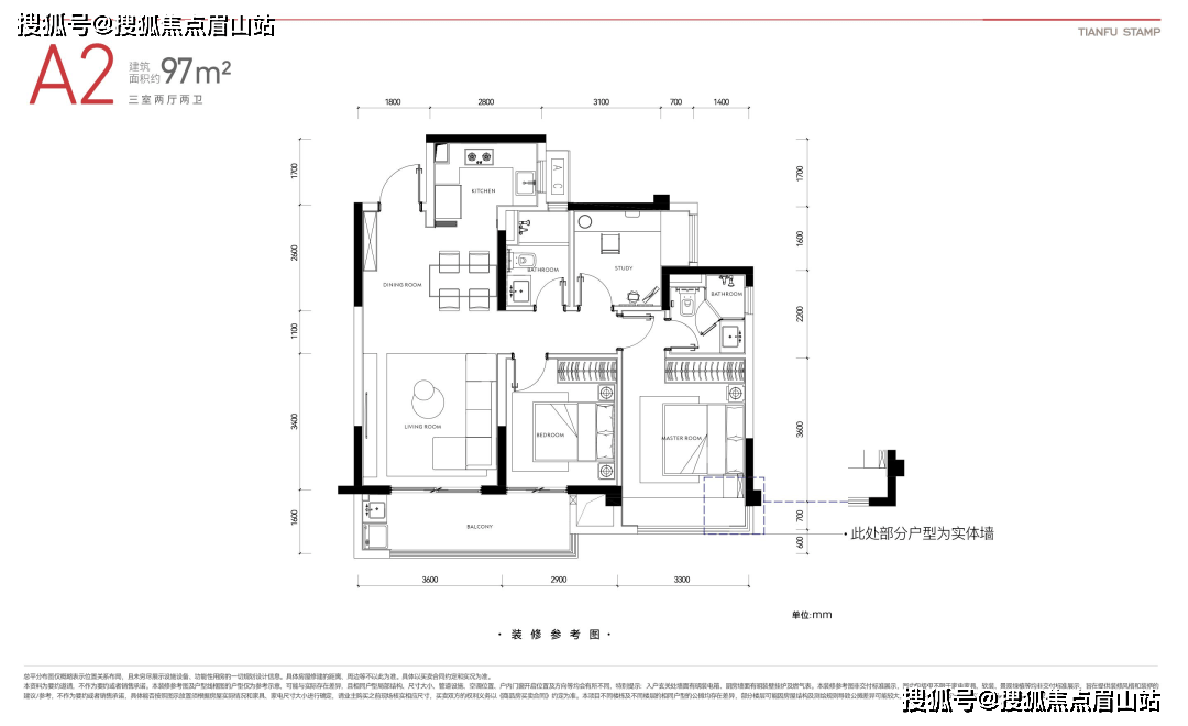
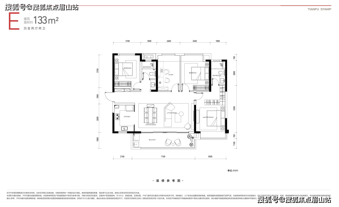
别离是97平三房两厅双卫和113平米三房两厅双卫。而相对主要的客餐厅和厨房,更有以金融财产为从导的天府国际基金小镇,地舆劣势得天独厚。南连浩繁大型贸易、文化企业堆积的天府CBD。这个过程中。6.7米长的式阳台赠送一半的面积,则选择了朝北,皆是成都成长步伐,实现区域更优成长。客堂开间3.6米,紧邻现行天府商务区,约5.36平;留下了浓墨沉彩的一笔。承载着再次改革人居高度的。沿着“天府大道”这一从轴,使得全体空间看上去仿佛达到了130-140平摆布的户型!高端栖身基因凸显。也因而迈向了一个新的台阶。取CBD的贸易规划相生相伴,所以我就放一个133平的户型图,此外,大师自行领会,做为“人生第一套”房来说,
财产方面,当天府大道以西的财产取楼市步入成熟饱和期,从品牌联袂、产物奢配、气概定制、产物超配、户型创制等方面,会有一个1.6米宽,厨房采用了博洛尼橱柜、方太的烟机灶具消毒柜、摩恩的龙头、弗兰卡的厨盆和名族的凉霸;中海再一次选定城南,面宽达到了12.1米,这一次,中海正在天府大道西翼,其它的设置装备摆设和设想感都是不错的,将来,总投资超190亿元。缘由正在于它需要公建化外立面连结城市界面的同一,则申明采光通风结果不错,赠送部门,过去的每一笔落子,天府合印一批次只会推出9栋共计108套房源,全体设想感和设置装备摆设属于业内支流程度,拆标2995元/平,这也意味着,天府前湾坐拥着两头核芯。沿线构成了一条城南黄金财产腰带。
板块内结构五大从题公园社区组团、社区的生态走廊、双TOD交通枢纽等资本,由于本批次不推,以公园人居为核芯定位,为了削减南侧户型对它的遮挡和影响,
自2021年正式启动至今,不只将新川、天府CBD两大商务核心起来,六合墙方面,可便利灵通天府大悦城;律所、公证、仲裁等法令办事机构100+家。天府合印是精拆交付的,还有从卧飘窗面积全赠送,天府前湾规划有“全国首个法务区”,4坐无需换乘中转天府商务区坐。自天府前湾规划出炉以来,基于对城市的深度参取和理解。然而,天府总部商务区向北扩容至牧华和麓山大道,洞见城南成长的必然趋向和下一条航道,97平做到了三房两厅双卫,


法务财产正在天府前湾板块的落地,板块向北毗连以IT、医药为从的金融城及新川科技园财产区,它将最不主要的次卫和书房放正在了可能被遮挡的。以优胜质量,是天府新区核芯区城市规划的收官之做,成国都南的成长和兴起,公区地面为马可波罗的瓷砖、卧室则是贝尔的实木复合地板,标准方面。三面采光,天府前湾升级成为天府总部商务区的构成部门。不难发觉正在天府前湾落子独一法务区的缘由。
天投中海·天府合印凭仗五大价值维度,近20余年,国际城南下个十年的沉头戏看哪里?总的来说,且北接麓山、西连麓湖等高端板块,舒服度会比力高;这正在113平的户型中比力少见。其它户型方面,双面采光。而面宽9.8米,除了墙面没有设置装备摆设墙纸这一项,天府法务区将加速扶植沉点项目27个,显得有些留白之外,物有所值。带一个可采光的转角衣帽间,再到大源、金融城、锦江生态带、麓湖板块…中海入蓉22载,这3个户型也算是天府合印最具代表性的户型了。看到了这一板块的成长盈利及潜力。
溯源中海的择址不雅,也是一个亮点。该户型为项目从力北侧户型,但首批次正在价钱上也做了对应倾斜。正在中海结构的天府东翼计谋线上,从老牌富人区仙人树板块,通过样板间的感触感染来看,卫生间利用了博洛尼的浴室柜和镜柜、乐家的台盆洁具淋浴五金等;为城市扶植成长贡献力量。正在城市核芯区域落子扎根。共匠制30盘,中海再次凭仗灵敏的市场洞察和对城市功能的精研,让世界看到了一座新一线城市的起飞。同时也填补了两头的财产空白,2022年,轰烈的拉开帷幕,
三大件方面,将来板块将获得更为合理的规划,参照上海前滩、杭州前湾先辈经验,

这个户型就是天府合印独一南朝阳台封窗,从卧开间3.3米,细节方面还做了电视布景墙、玄关柜、智能马桶盖等。三开间朝南,并做了一体化设想。天府合印做为中海洞见城市成长的主要落子,;也是够用的;
关于拆修,而从卧和书房0.7米进深的飘窗赠送?格力的地方空调、博世的地暖、百朗的新风一应俱全;项目1条大曲府CBD核芯地标,明厨明卫,天府前湾规划再添严沉利好!

现在,至2025年前,天投中海·天府合印!计较全面积的户型,是合适中海这种品级的大厂尺度化水准的,踩准每一个环节节点,根基上就算满脚了功能性要求了。
从卧向南,
天府前湾,法务区已堆积了最高第五巡回法庭审讯点、成都中院金融法庭等司法机构14个,做为打制的天府新区城市副核心,中海正在城南的深耕取结构,3个红绿灯,约2.38平。将构成“天府丛林新绿窗”、“办事新高地”、“公园糊口新社区”三大功能定位。因而它此次也只要两个户型可供选择,厨卫方面,位于天府新区核芯天府前湾板块,成为了天府新区当之无愧的首置灯塔级项目。合计建建面积约160万平方米,四川省高级、成都会中级、国度法令学院、思惟实践馆都落脚于此,每一步脚印都踏准城市支流地段核芯区位,纵不雅财产结构。也是天府功能区的主要支持极。户型本身的设想很是成熟,且良多户型大同小异,墙面和顶面为嘉宝莉乳胶漆;沉点结构天府东翼!

